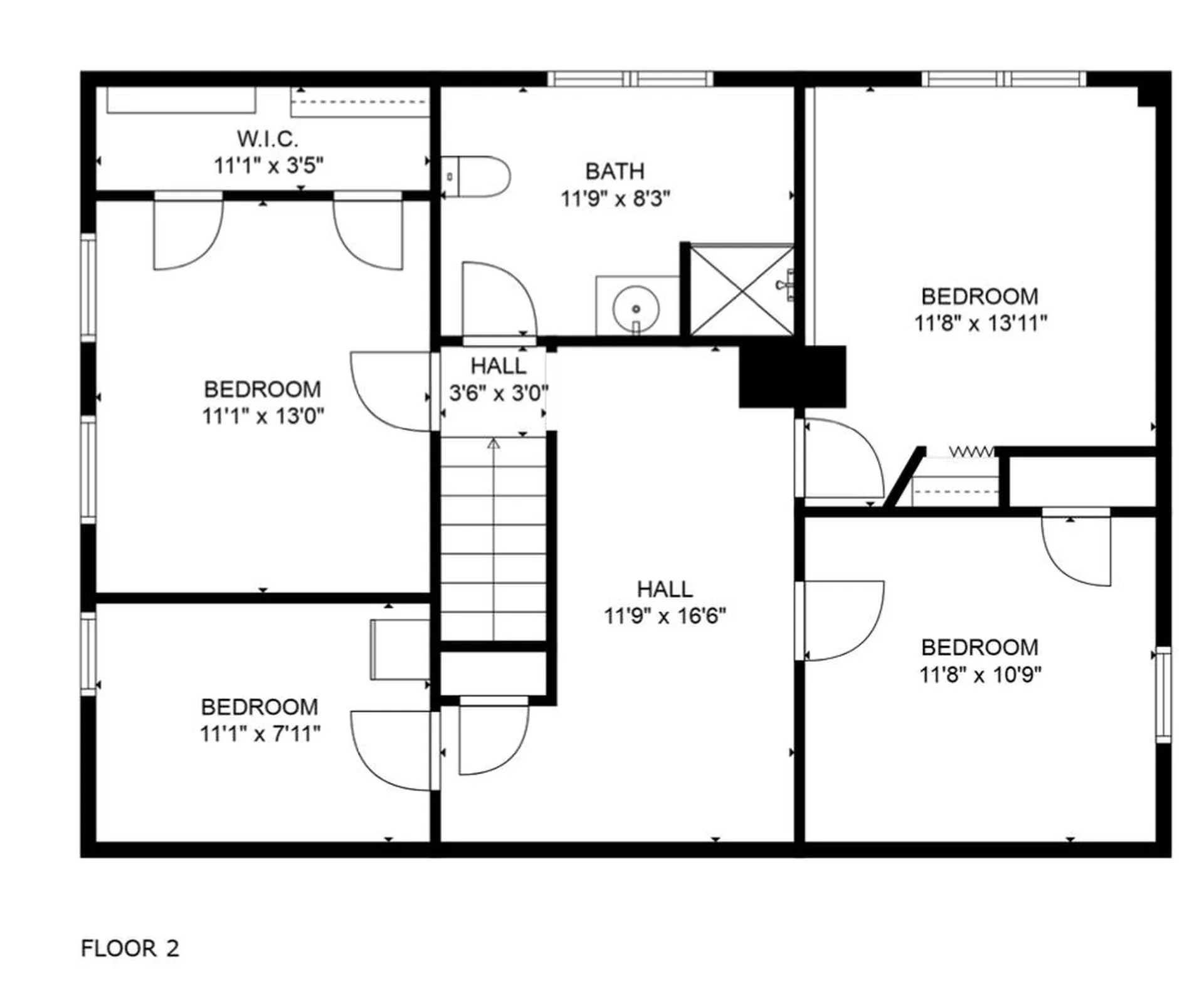
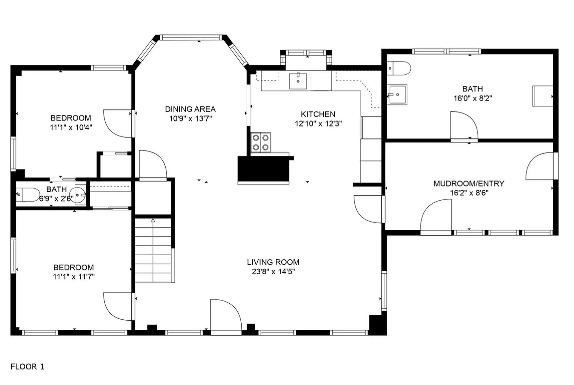
Situated on a 2-acre lot with White River frontage in the heart of South Royalton, this classic 1918 Cape is ready for a new owner. Conveniently located less than 1.5 miles from downtown Royalton and Vermont Law School and less than 5 miles from I89, this home is a hidden gem waiting for your personal touch. Accessible via a publicly maintained and paved road there is a freshly regraded driveway and plenty of parking. Entering the home, walk into an oversized mudroom with an attached large half bath that could act as a perfect laundry room or potential additional full bathroom space. The spacious kitchen and dining room offer stunning views of the White River and the private backyard, creating a picturesque setting for everyday living. The main floor also features two bedrooms (one with an attached half bath) and access to the large barn/attached two car garage space with tons of storage above. Upstairs is an additional bedroom, 3/4 bath, and three bonus spaces that could be used for hobbies/crafts, work-from-home offices, additional storage space or even a gym. The property has a newer drilled well (2 years old), and several newer windows. With plenty of space to expand, whether for hobbies or additional living areas, the home also includes a bonus space ready to be finished to suit your needs. Don't miss out on this charming South Royalton cape-schedule your showing today! Owner is a NH RE agent.

Listing Tools

Property Details of 1495 Vt Route 14

Property Details

Interior Features

Exterior Features

Utilities and Appliances

Community

Map Location

Listed by Holly Hall of Snyder Donegan Real Estate Group (Cell: 802-431-3421)

Listing Sold by Susan Cole Realty Group, LLC
Broker Reciprocity 

Copyright 2025 PrimeMLS, Inc. All rights reserved. This information is deemed reliable, but not guaranteed. The data relating to real estate displayed on this display comes in part from the IDX Program of PrimeMLS. The information being provided is for consumers’ personal, non-commercial use and may not be used for any purpose other than to identify prospective properties consumers may be interested in purchasing. Data last updated November 17, 2025 12:10 PM EST

 

Hi there! How can we help you?

Contact us using the form below or give us a call.

Send Us A Message:

I agree to receive marketing and customer service calls and text messages from RE/MAX Upper Valley Partners. To opt out, you can reply 'stop' at any time or click the unsubscribe link in the emails. Consent is not a condition of purchase. Msg/data rates may apply. Msg frequency varies. Privacy Policy.

Do not fill in this field:

This site is protected by reCAPTCHA and the Google Privacy Policy and Terms of Service apply.

Hi there! How can we help you?

Contact us using the form below or give us a call.

Send Us A Message:

Do not fill in this field:

This site is protected by reCAPTCHA and the Google Privacy Policy and Terms of Service apply.

Hi there! How can we help you?

Contact us using the form below or give us a call.

Send Us A Message:

Do not fill in this field:

This site is protected by reCAPTCHA and the Google Privacy Policy and Terms of Service apply.

Do not fill in this field:

This site is protected by reCAPTCHA and the Google Privacy Policy and Terms of Service apply.

Do not fill in this field:

This site is protected by reCAPTCHA and the Google Privacy Policy and Terms of Service apply.

Do not fill in this field:

This site is protected by reCAPTCHA and the Google Privacy Policy and Terms of Service apply.

$

Do not fill in this field:

This site is protected by reCAPTCHA and the Google Privacy Policy and Terms of Service apply.