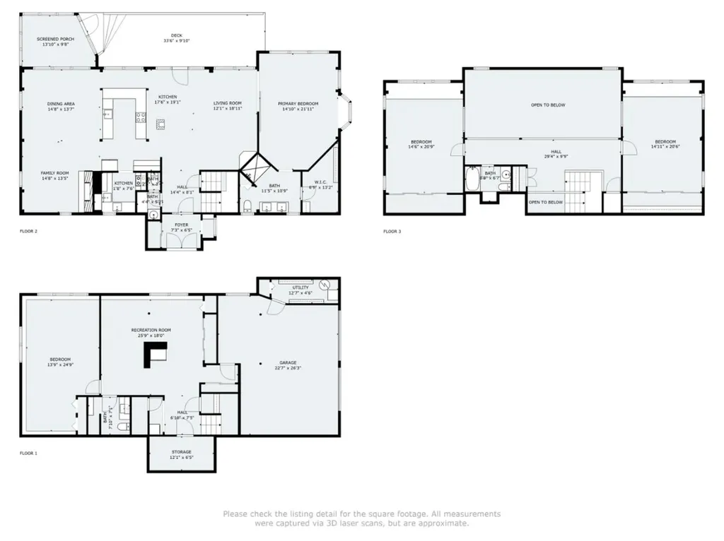
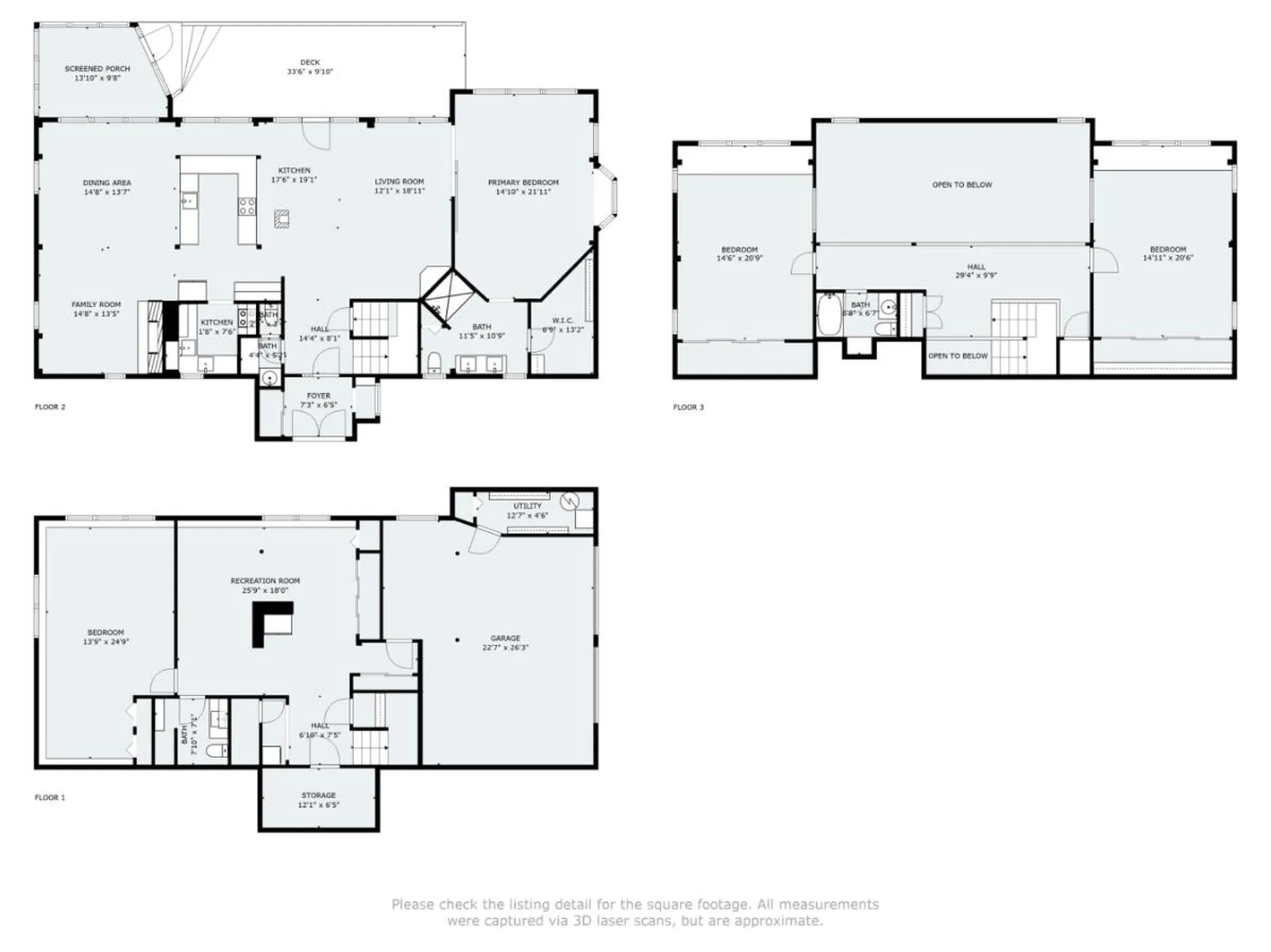
Discover your sanctuary in the highly sought after Olde Farms neighborhood of Grantham, NH. Privacy and adventure awaits at one of the areas original Yankee Barn homes and most unique properties, set on over 11.5 picturesque acres of New Hampshire woods. A distinctive, Upper Valley estate offering you amenities conveniently outside your doorsteps- a gunite pool, pond with dock, platform tennis court, orchard with apple, pear and peach trees and private trail system for hiking, biking and nordic skiing. Step inside the inviting entry to freshly refinished and immaculate original wide plank pine floors. Stay cool in the summer with mini-splits providing air conditioning. The open first floor with cathedral ceilings is equipped with a custom gourmet kitchen, expansive butler's pantry, a stone fireplace and central wood stove capable of providing a warm glow or soothing heat. The first floor primary suite, with recently remodeled bathroom, offers easy single level living. The upper level has 2 large bedrooms with large closets and a full hall bath. The lower level has space for an exercise room, play area and a bonus sleeping room, entertainment room. The owners have meticulously cared for and upgraded this home for your benefit- refinished floors, paint, roof, skylights, deck railings, mini-splits and pool heater, etc. Amazing location, only 23 minutes to Dartmouth Hitchcock and 19 minutes to Lake Sunapee.

Listing Tools

Property Details of 729 Olde Farm Road

Property Details

Interior Features

Exterior Features

Utilities and Appliances

Map Location

Listed by Andy Clouse of BHHS Verani Upper Valley (Phone: 267-349-9266)
Broker Reciprocity 

Copyright 2025 PrimeMLS, Inc. All rights reserved. This information is deemed reliable, but not guaranteed. The data relating to real estate displayed on this display comes in part from the IDX Program of PrimeMLS. The information being provided is for consumers’ personal, non-commercial use and may not be used for any purpose other than to identify prospective properties consumers may be interested in purchasing. Data last updated November 17, 2025 8:54 AM EST

 

Hi there! How can we help you?

Contact us using the form below or give us a call.

Send Us A Message:

I agree to receive marketing and customer service calls and text messages from RE/MAX Upper Valley Partners. To opt out, you can reply 'stop' at any time or click the unsubscribe link in the emails. Consent is not a condition of purchase. Msg/data rates may apply. Msg frequency varies. Privacy Policy.

Do not fill in this field:

This site is protected by reCAPTCHA and the Google Privacy Policy and Terms of Service apply.

Hi there! How can we help you?

Contact us using the form below or give us a call.

Send Us A Message:

Do not fill in this field:

This site is protected by reCAPTCHA and the Google Privacy Policy and Terms of Service apply.

Hi there! How can we help you?

Contact us using the form below or give us a call.

Send Us A Message:

Do not fill in this field:

This site is protected by reCAPTCHA and the Google Privacy Policy and Terms of Service apply.

Do not fill in this field:

This site is protected by reCAPTCHA and the Google Privacy Policy and Terms of Service apply.

Do not fill in this field:

This site is protected by reCAPTCHA and the Google Privacy Policy and Terms of Service apply.

Do not fill in this field:

This site is protected by reCAPTCHA and the Google Privacy Policy and Terms of Service apply.

$

Do not fill in this field:

This site is protected by reCAPTCHA and the Google Privacy Policy and Terms of Service apply.